
Граффити с Одри Хепбёрн
Напоминание о внутренней свободе
Граффити с Одри Хепбёрн
Напоминание о внутренней свободе
Уникальная возможность от Совкомбанка — семейная ипотека с отсрочкой части первоначального взноса.
Посетите экскурсию по жилому комплексу и посмотрите всё своими глазами
Во дворе нет машин. Все парковки — внизу, под стилобате. На втором уровне устроена закрытая территория с благоустройством: детская площадка, зелёные зоны, места для отдыха. В оформлении — вечнозелёные, злаковые и плодовые растения. Здесь есть клубника, смородина и малина — они создают атмосферу домашнего уюта.
Игровая площадка приподнята на колонны — так мы освободили пространство и добавили света. Есть и крытая часть — на случай дождя. Благоустройство ориентировано на семьи: удобно с детьми, спокойно взрослым.
Здесь тишина, тепло, безопасность. Внутри — бесшумные дизайнерские лифты, энергоэффективные окна, хорошая шумоизоляция, увеличенные дверные проёмы, приточная вентиляция без объединения с соседями.
Коммуникации спрятаны — стояки вынесены в подъезды, чтобы не мешать в квартире. В каждой квартире предусмотрены индивидуальные вентканалы. Разводка отопления — в полу. В санузлах можно установить душевые вровень с полом.
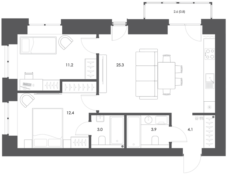
"Небесные дворцы" — двухуровневые квартиры с 5-метровыми потолками и окнами в два света. Пространство кухни-гостиной объединяет семью, но зонировано для разных сценариев. На антресоли — ваш личный этаж: кабинет, мастерская или уголок уединения.
Детские — в отдельном блоке с ванной, родительская спальня — с гардеробной и санузлом. Французский балкон, постирочная, кладовая и три остеклённых балкона продуманы для комфорта.
Небесные дворцы — это простор, высота и лёгкость каждый день.
В-Сити удобно расположен: до центра — 10–15 минут пешком. По соседству — спорткомплекс «Витязь» с бассейном, стадионом, хоккейной коробкой и теннисными кортами. В шаговой доступности — школы, детские сады, магазины, аптеки и кафе, фитнес-центр Парнас.
Улица Ленинградская — одна из главных транспортных артерий города: удобно выезжать, легко вызывать такси, быстро добираться в любую точку. При этом сама улица, на которой расположен дом, — тихая.
В-Сити предлагает редкое сочетание: близость к центру без лишнего шума.

Узнайте больше о проекте или запишитесь на экскурсию. Оставьте свой номер, и мы вам перезвоним.
Данный расчет приведен для общей информации и не является публичной офертой. Оценивайте свои финансовые возможности и риски. Изучите все условия кредита (займа) на официальном сайте выбранного банка
ООО «Специализированный застройщик «Черри», ОГРН 1213500012945, ИНН 3525472827
Разрешение на строительство департамент градостроительства администрации города Вологды № 35-24-20-2024 от 03.05.2024