О компании
Вакансии
Студия дизайна
Продуманные планировки
Реферальная программа
Контакты
Ещё
Написать нам
+7 (8172) 701-701
Проекты
Поиск квартир
Выгодные условия
Паркинг
Отзывы
+7 (8172) 701-701
Чили
Витязь
Моне
В-Сити
Смайл
Затон
Чили
Моне
В-Сити
Начать
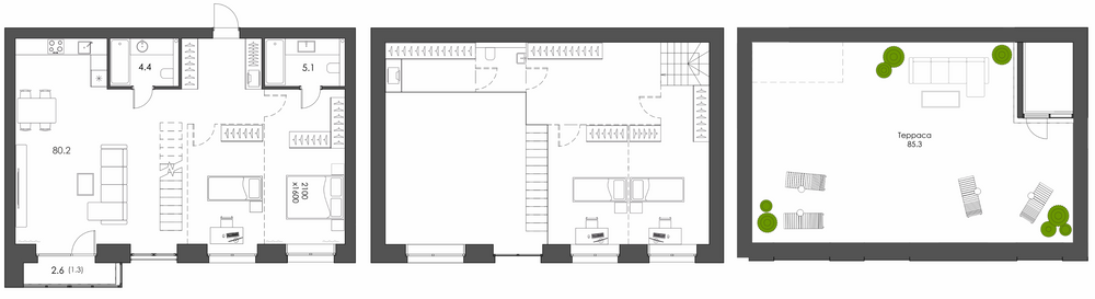
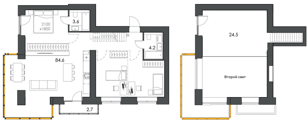
4-комнатные квартиры от ЧерриДом
Все города и регионы
В-Сити
В-Сити
Моне
Моне
Чили
Чили
Смайл
Смайл
Витязь
Витязь
Затон
Затон
ЧерриДом
ЧерриДом
Проект
Выберите параметр
В-Сити
Витязь
Затон
Моне
Смайл
ЧерриДом
Чили
Комнатность
1
2
3
4+
Площадь, м2
Ваш поиск
4+ комнат
Сортировать по
Площади
По умолчанию
По увеличению площади
По уменьшению площади
Показать забронированные
Вид отображения
Карточки
Список
№ 25
Витязь
4, Секция 1, Этаж 5
№ 60
Моне
Моне, Секция 1, Этаж 16